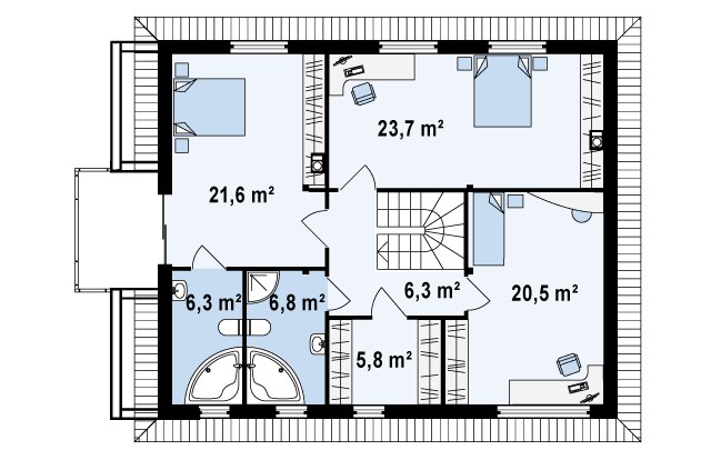
Zx29 k
Выберите проект дома вашей мечты! Уникальные и проверенные временем проекты домов и коттеджей.
На нашей странице размещено более 500 готовых проектов загородных домов Архитектурного бюро Z500. В выбранный вами проект можно заказать необходимые изменения, например адаптацию фундамента под геологические данные грунта вашего участка или купить дополнительные пакеты, такие как: "теплый пол", "комфортный дом" ," молниезащита".
С марта 2018 года цены на проекты изменены и в течении месяца будут актуализированы на сайте. Информацию по стоимости проектов просим уточнять по телефонам в офисе.
Описание:
Zx29 k Комфортабельный двухэтажный дом простого современного дизайна. Кирпичная облицовка фасадов.
Площадь проекта:
199.4 м2
от 62 400 руб.
Заказать проект


