Zx14
Выберите проект дома вашей мечты! Уникальные и проверенные временем проекты домов и коттеджей.
На нашей странице размещено более 500 готовых проектов загородных домов Архитектурного бюро Z500. В выбранный вами проект можно заказать необходимые изменения, например адаптацию фундамента под геологические данные грунта вашего участка или купить дополнительные пакеты, такие как: "теплый пол", "комфортный дом" ," молниезащита".
С марта 2018 года цены на проекты изменены и в течении месяца будут актуализированы на сайте. Информацию по стоимости проектов просим уточнять по телефонам в офисе.
Описание
Проект Zx14 представляет двухэтажный дом в стиле модерн с практичным интерьером и гаражом для двух автомобилей. Дизайн фасада обыгрывает панорамное остекление одной из спален второго этажа, впечатление от широкого окна усилено эффектной отделкой деревом. Новаторская форма объекта, который как бы собран из отдельных блоков, дополняется изящным оформлением входной группы.
Читать полностьюНа первом уровне спроектирована наполненная светом открытая гостиная, которая зрительно расширена за счёт примыкающего просторного холла. Кухня соединена со столовой. Панорамное остекление, выход на террасу, камин, устроенный так, что пламя будет видно со всех уголков гостиной, делают зону отдыха идеальным местом для релаксации. Между кухней и прихожей предусмотрено отдельное помещение, через которое можно доставлять покупки.
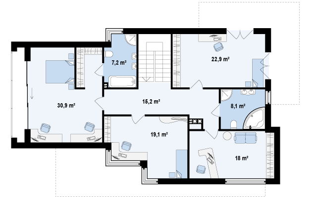
Четыре просторные спальни спроектированы на втором этаже. Это видовые комнаты с большой площадью остекления. В самой просторной есть гардеробная и собственная ванная, другая спальня имеет выход на террасу второго уровня.
Данные


