Z211 GL
Выберите проект дома вашей мечты! Уникальные и проверенные временем проекты домов и коттеджей.
На нашей странице размещено более 500 готовых проектов загородных домов Архитектурного бюро Z500. В выбранный вами проект можно заказать необходимые изменения, например адаптацию фундамента под геологические данные грунта вашего участка или купить дополнительные пакеты, такие как: "теплый пол", "комфортный дом" ," молниезащита".
С марта 2018 года цены на проекты изменены и в течении месяца будут актуализированы на сайте. Информацию по стоимости проектов просим уточнять по телефонам в офисе.
Описание
Разработка Z211 GL представляет версию проекта Z211 с гаражом для одного авто слева.
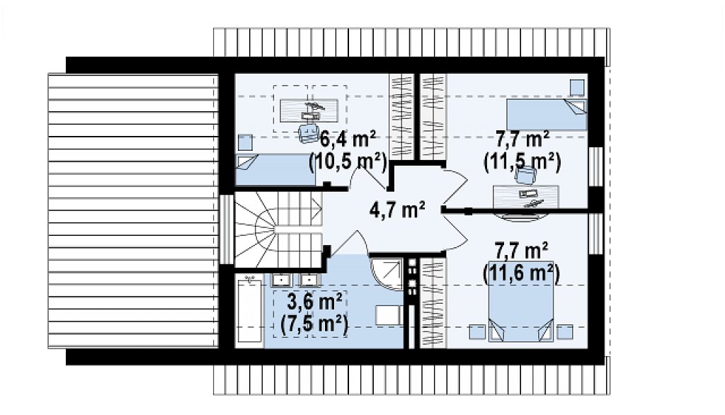
Читать полностьюНебольшой оригинальный дом с мансардой спроектирован как функциональное и вместе с тем удобное для жизни решение. Дизайн проекта привлекателен интересными деталями: отделка входной группы и фасада светлым деревом плюс нестандартное остекление мансарды наполняют простую форму стильным содержанием. Просторная дневная зона открытого типа с камином и прилегающей террасой спланирована на первом уровне. Также здесь предусмотрена дополнительная комната, в которой можно оборудовать гостевую спальню, а можно устроить кабинет. Три спальни (в каждой выделено место под встроенные шкафы) и просторная общая ванная устроены на втором этаже.
Данные


