Z175
Выберите проект дома вашей мечты! Уникальные и проверенные временем проекты домов и коттеджей.
На нашей странице размещено более 500 готовых проектов загородных домов Архитектурного бюро Z500. В выбранный вами проект можно заказать необходимые изменения, например адаптацию фундамента под геологические данные грунта вашего участка или купить дополнительные пакеты, такие как: "теплый пол", "комфортный дом" ," молниезащита".
С марта 2018 года цены на проекты изменены и в течении месяца будут актуализированы на сайте. Информацию по стоимости проектов просим уточнять по телефонам в офисе.
в наличии
Описание:
Просторный функциональный дом с гаражом, красивыми мансардными окнами и дополнительной спальней на первом этаже.
Площадь проекта:
259 м2
от 46 900 руб.
Заказать проект
Описание
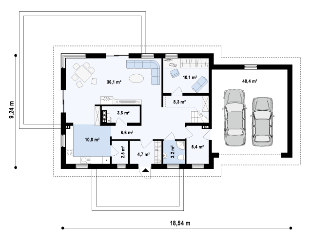
Z175 — это просторный функциональный дом с гаражом, красивыми мансардными окнами и дополнительной спальней на первом этаже.
Читать полностьюПреимущества проекта Z175:
- Небольшая площадь в дневной зоне дает возможность вносить в планировку определенные изменения.
- Сложная форма дневной зоны, образованная кладовой в центре, отделяет гостиную и столовую от кухни.
- Полуоткрытая кухня удобно сообщается со столовой, что облегчает сервировку стола.
- Расположение выхода на террасу в обеденной зоне позволит быстро и удобно накрыть стол в саду в летнее время.
- Открытая терраса способствует хорошему естественному освещению дневной зоны.
- Дополнительная комната на первом этаже поможет проще и удобнее организовать ежедневный быт жильцов.
- Расположение хозяйственного помещения рядом с гаражом удобно для хранения садовых инструментов и любого другого инвентаря.
- Кухонная кладовая значительно облегчит ежедневный хозяйственный быт.
- Прямой переход из гаража в дом упростит перенос вещей и распаковку покупок.
- Одна из спален мансарды обустроена собственной ванной комнатой и выходом на балкон.
- Обширное помещение чердака над гаражом можно оборудовать как дополнительную кладовую.
- Мансардные окна делают комнаты более уютными и функциональными.
- Ванная комната достаточно большая чтобы вместить в себя прачечную кроме всей сантехники.
- Санузлы, расположенные один под другим, упрощают организацию водопровода и канализации в доме.
- Дополнительное помещение на мансарде удобно использовать в качестве гардеробной или подсобного помещения.
Данные
Первый этаж 91,2 / 131,5 м2

Мансардный этаж 89,2 / 127,5 м2

Z175
Жилая площадь
180.4 м2
Общая площадь
259 м2
Угол наклона кровли
38 °
Площадь застройки
160 м2
Кубатура
615.8 м3
Высота
Минимальные размеры участка:7.83 м
