Z174
Выберите проект дома вашей мечты! Уникальные и проверенные временем проекты домов и коттеджей.
На нашей странице размещено более 500 готовых проектов загородных домов Архитектурного бюро Z500. В выбранный вами проект можно заказать необходимые изменения, например адаптацию фундамента под геологические данные грунта вашего участка или купить дополнительные пакеты, такие как: "теплый пол", "комфортный дом" ," молниезащита".
С марта 2018 года цены на проекты изменены и в течении месяца будут актуализированы на сайте. Информацию по стоимости проектов просим уточнять по телефонам в офисе.
Описание
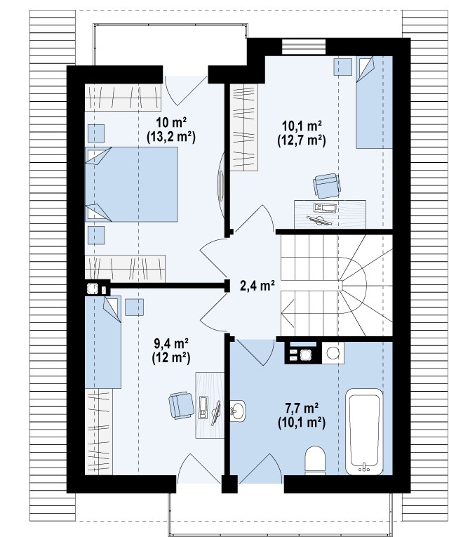
Z174 — компактный и удобный дом традиционной формы, подходящий, также, для узкого участка.
Читать полностьюПреимущества проекта Z174:
• простая форма дома фантастически преображается с помощью сочетания различных материалов и цветовой гаммы;
• двускатная кровля, небольшая площадь, простая форма дома и наличие мансарды способствуют значительной экономии бюджета на строительство;
• возможность объединить полузакрытую кухню с гостиной позволит более интересно обыграть интерьер, сделав его более уютным и комфортным;
• просторное техническое помещение позволит разместить все необходимое оборудование;
• комнату на первом этаже можно использовать как кабинет, при необходимости переоборудовав под гостевую;
• на второй этаже размещены 3 спальни и ванная комната.
Z174 – это проект, в который трудно не влюбиться
Данные


