Z120
Выберите проект дома вашей мечты! Уникальные и проверенные временем проекты домов и коттеджей.
На нашей странице размещено более 500 готовых проектов загородных домов Архитектурного бюро Z500. В выбранный вами проект можно заказать необходимые изменения, например адаптацию фундамента под геологические данные грунта вашего участка или купить дополнительные пакеты, такие как: "теплый пол", "комфортный дом" ," молниезащита".
С марта 2018 года цены на проекты изменены и в течении месяца будут актуализированы на сайте. Информацию по стоимости проектов просим уточнять по телефонам в офисе.
в наличии
Описание:
Выгодный в строительстве и эксплуатации дом с дополнительной спальней на первом этаже.
Площадь проекта:
180.1 м2
от 40 900 руб.
Заказать проект
Описание
Проект Z120 представляет собой выгодный в строительстве и эксплуатации дом с дополнительной спальней на первом этаже.
Читать полностьюПреимущества проекта Z120:
- Простая форма и двускатная кровля позволяют вести строительство дома проще и быстрее.
- Сложная форма дневной зоны, образованная кладовой в центре дневной зоны, создает уютные подзоны для кухни столовой и гостиной. Отказавшись от кладовой можно значительно увеличить визуальное пространство дневной зоны, сделав его полностью открытым.
- Закрытая кухня скрывает ежедневный хозяйственный быт от зоны отдыха.
- Крытая терраса подарит чудесный гриль на свежем воздухе в любую погоду.
- Эркер в обеденной зоне выделяет для столовой отдельную подзону и способствует лучшему естественному освещению гостиной.
- Расположение хозяйственных помещений рядом с гаражом удобно для хранения инструментов и любого инвентаря.
- Кладовая расположенная рядом с кухней незаменимое подспорье для хранения запасов и хозяйственной утвари.
- Прямой переход из гаража в дом обеспечивает удобную распаковку вещей из машины.
- Дополнительная комната на первом этаже делает ежедневный быт более рациональным и комфортным.
- Одна из спален обустроена собственной гардеробной комнатой.
- Санузлы расположенные один над другим упрощают проведение водопроводной системы и канализации в доме.
- Дополнительные помещения на мансарде можно использовать в качестве дополнительной комнаты или библиотеки, или же в качестве технических помещений, мастерской.
- Классический стиль дома стиль по достоинству оценят любителя традиционной архитектуры.
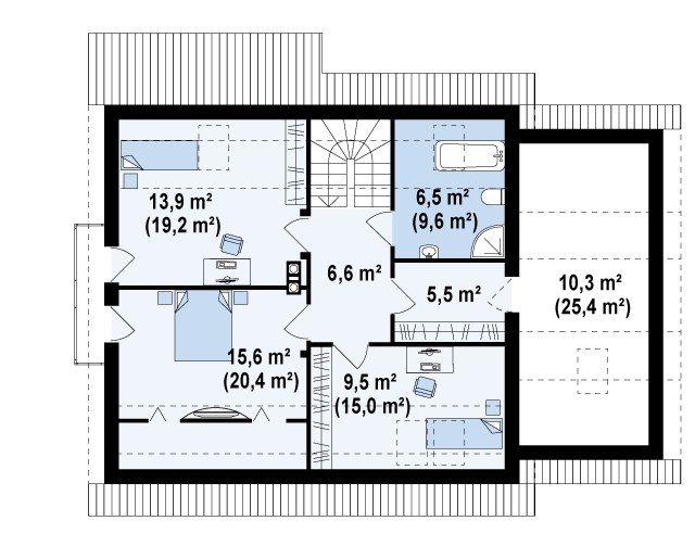
Данные
Первый этаж 78,8 / 103,8 м2

Мансардный этаж 57,6 / 76,3 м2

Z120
Жилая площадь
136.4 м2
Общая площадь
180.1 м2
Угол наклона кровли
35 °
Площадь застройки
127.6 м2
Кубатура
564.7 м3
Высота
Минимальные размеры участка:7.63 м
