Z111
Выберите проект дома вашей мечты! Уникальные и проверенные временем проекты домов и коттеджей.
На нашей странице размещено более 500 готовых проектов загородных домов Архитектурного бюро Z500. В выбранный вами проект можно заказать необходимые изменения, например адаптацию фундамента под геологические данные грунта вашего участка или купить дополнительные пакеты, такие как: "теплый пол", "комфортный дом" ," молниезащита".
С марта 2018 года цены на проекты изменены и в течении месяца будут актуализированы на сайте. Информацию по стоимости проектов просим уточнять по телефонам в офисе.
Описание
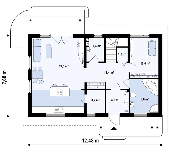
Проект Z111 представляет собой традиционный дом с кабинетом и большой ванной комнатой на первом этаже. Его простые формы украшают необычное оформление окон и скошенная колона около террасы.
Читать полностьюПреимущества проекта Z111:
- Простая форма дома и двускатная крыша способствуют снижению затрат на строительство и эксплуатацию дома.
- Простая форма дневной зоны создает ощущения свободы открытого пространства.
- Открытая кухня зрительно увеличивает дневную зону и способствует ее лучшему дневному освещению.
- Крытая терраса удобна для приготовления гриля или шашлыка в непогоду, и, конечно, же для ежедневного летнего отдыха рядом с домом.
- Окна в гостиной расположенные с трех сторон наполняют ее солнечным светом в течение всего дня.
- Кладовая с доступом из кухни очень удобна для хранения и использования хозяйственной утвари.
- Дополнительная комната на первом этаже делает домашний ежедневный быт более функциональным и удобным.
- Расположение санузлов один над другим упрощают проведение водопровода и канализации.
- Подсобное помещение на мансарде удобно для хранения хозяйственных вещей и для поддержания чистоты в доме.
- Традиционная архитектура дома будет по достоинству оценена любителями классического стиля.
Данные


